Attraktive 3-Raumwohnung mit Balkon & TG-Stellplatz in Debschwitz
590,00 EUR Gera | Neubauwohnung | 70m² | 3 ZimmerObjektbeschreibung
Das sehr gepflegte Wohn- und Geschäftshaus wurde im Jahr 1997 als Neubau in Form einer Passagenanlage errichtet.
Das Objekt besteht aus mehreren Verkaufseinheiten im EG-Bereich.
Im Weiteren befinden sich im Obergeschoß ca. 57 Wohneinheiten mit einer hervorragenden Belegungsquote.
In der Eigentumswohnanlage wohnen z.T. Selbstnutzer sowie langjährige Mieter zusammen, so dass ein entsprechendes Wohnumfeld garantiert ist.
Im Außenbereich stehen den Gewerbemietern ca. 80 Kundenstellplätze (ebenerdig) auf dem ca. 8.200 m² großen Grundstück sowie für die Mieter des Hauses eine traumhaft geräumige Tiefgarage zur Einstellung Ihres PKW zur Verfügung.
Lage
Das Wohn- und Geschäftshaus befindet sich im Stadtteil Debschwitz.
Vom Stadtzentrum ist das Wohngebiet südwestlich gelegen. Der Stadtteil wird durch eine gewachsene städtische Bebauung ausgezeichnet.
Die Verkehrsanbindung mit dem PKW ist durch die im Norden verlaufende B 2 sowie durch die im Osten entlangführende B 92 bzw. Wiesestraße hervorragend erschlossen.
Im Weiteren sind durch die gute öffentliche Nahverkehrsanbindung (Stadtbahnlinie 3 – Haltestelle ca. 200 m entfernt) das Stadtzentrum sowie angrenzende Wohngebiete auf der Nord-Süd-Achse in wenigen Minuten erreichbar
Ausstattung
Alle Wohnräume sind über den Flur erreichbar, der mit hochwertigen Design-Planken ausgestattet ist. Vom Eingangsbereich gelangen Sie rechterhand in das modern geschnittene Wohnzimmer, das dank des bodentiefen Fensterelements von viel Tageslicht profitiert. Direkt angrenzend befindet sich der großzügige Balkon, der zum Entspannen im Freien einlädt.
Neben dem Wohnzimmer liegt ein vielseitig nutzbares Kinder- oder Arbeitszimmer mit praktischer Raumaufteilung. Daneben befindet sich die helle und freundliche Küche, die mit einem Laminatboden in Ahornoptik ausgestattet ist. Das angrenzende Schlafzimmer ist bestens dimensioniert und bietet optimale Stellmöglichkeiten für Ihre Möbel.
Das innenliegende Bad überzeugt mit modernen, hellen Fliesen. Die abgesenkte Badewanne verleiht dem Raum einen besonderen Charme. Zudem ist ausreichend Platz vorhanden, um Ihre Waschmaschine bequem zu integrieren.
Weiterhin besitzt diese Wohnung noch einen großzügigen Kellerraum im Untergeschoss der Ihnen zusätzlichen Stauraum bietet.
Für Ihr Auto steht Ihnen ein eigener Tiefgaragenstellplatz im Haus zur Verfügung.
Die Wohnung wird vollständig renoviert präsentiert und hat einen sehr gepflegten Bezugs-Zustand. Im Flur liegt eine Design-Planke und in allen Wohnräumen wurde Laminatböden in Ahornoptik eingebracht. Damit haben Sie eine erstklassige Mietwohnung, die Sie ganz nach Ihren Vorstellungen einrichten und zu einem stilvollen Zuhause gestalten können.
| Angebots-ID: | MW-G-14-AR-13-2000-1/Ex |
| Verfügbar ab: | 01.01.2026 |
| Miete: | 590,00 EUR |
| Nebenkosten: | 210,00 EUR |
| Heizkosten: | In Nebenkosten erhalten |
| Garage/Stellplatz Miete: | 60,00 EUR |
| Gesamtmiete: | 860,00 EUR |
| Kaution: | 1.300,00 |
| Zimmer: | 3 |
| Schlafzimmer: | 1 |
| Badezimmer: | 1 |
| Kellerräume: | 1 |
| Wohnfläche: | 70 m² |
| Nutzfläche: | 7 m² |
| Gesamtfläche: | 77 m² |
| Etage: | 1 |
| Etagen: | 2 |
| Baujahr: | 1997 |
| Objektzustand: | Neuwert |
| Ausstattungskategorie: | Neuwertig |
| Heizungsart: | Zentralheizung |
| Befeuerungsart: | GAS |
| Wert des Endenergiebedarfs: | 74 kWh/(m²*a) |
| Art des Energieausweises: | Verbrauchsausweis |
| Energieeffizienzklasse: | B |
| Baujahr lt. Energieausweis: | 1997 |
| : |
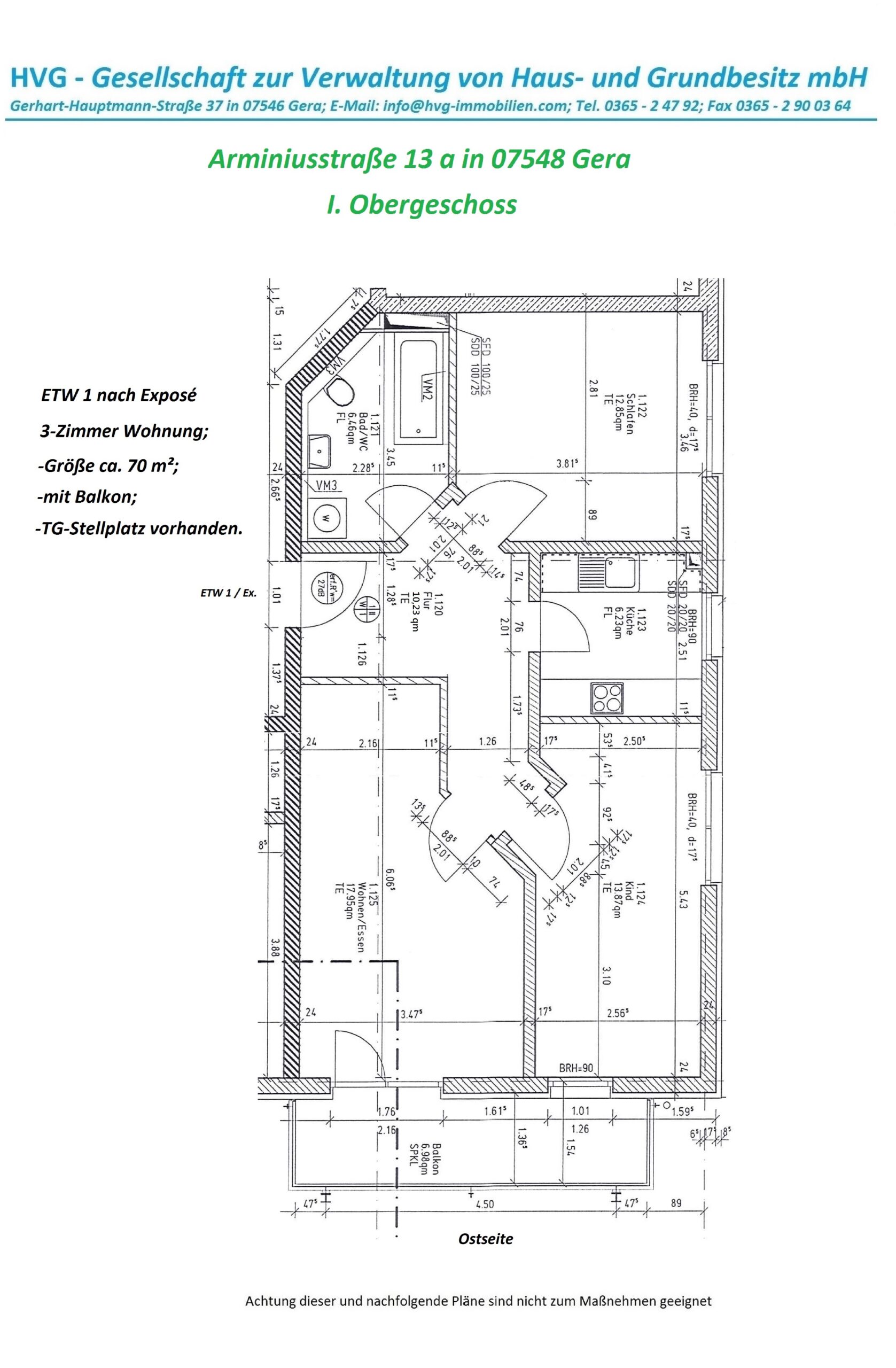
- Grundrissplan für die ETW 1 nach Exposé
Grundrissplan für die ETW 1 nach Exposé - Selbstauskunft
Selbstauskunft - Mietschuldenfreiheitsbescheinigung
Mietschuldenfreiheitsbescheinigung
Gera
Deutschland

























